Žirovnica širi zdravstveno postajo, investicija vredna več kot milijon evrov

| v Lokalno

V Žirovnici so podpisali dogovor za dozidavo zdravstvene postaje. Kaj vključuje projekt?

Župan občine Žirovnica Leopold Pogačar in direktor Osnovnega zdravstva Gorenjske Matjaž Žura sta podpisala dogovor o sofinanciranju investicije Dozidava Zdravstvene postaje Žirovnica, ki jo sofinancira tudi ministrstvo za zdravje.

Po podpisu dogovora sledi razpis za izbiro izvajalca. Začetek gradnje je predviden maja 2026, zaključek investicije s pridobitvijo uporabnega dovoljenja pa novembra 2026.

Investicija ocenjena na več kot milijon evrov

Na podlagi investicijskega programa za naložbo »Dozidava ZP Žirovnica« z dne 20. februarja 2026 je celotna investicija ocenjena na 1.004.256,55 evra

Financiranje investicije bo zagotovljeno iz več virov. Iz državnega proračuna oziroma Ministrstva za zdravje je predvidenih 362.480 evrov, Osnovno zdravstvo Gorenjske bo prispevalo 200.000 evrov, občina Žirovnica pa 441.776,55 evra.

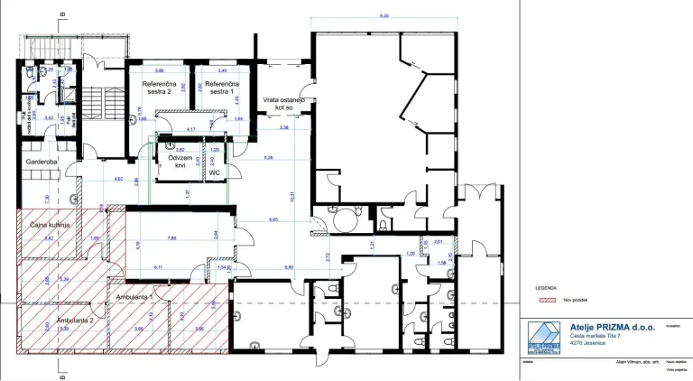
Projekt vključuje prizidek, prenovo obstoječih prostorov, projektno dokumentacijo in gradbeni nadzor.

Projekt bosta s strani občine vodila podžupan Sebastijan Zupan in Petra Žvan iz občinske uprave.

Kot so še sporočili z občine, bodo pacienti o načinu dela ambulant v času obnove in dozidave pravočasno obveščeni.

Vir: občina Žirovnica

Preberite še

Komentarji

Komentarji

Lokalno

Vse v Lokalno

Šport

Vse v Šport

Politika

Gospodarstvo

Slovenija

Scena

Svet

Vse v Svet

Kultura

Vse v Kultura